Sartrelaan 5, Eindhoven

€ 695.000,- k.k.

Details

Overdracht

Vraagprijs
€ 695.000,- k.k.
Status
beschikbaar
Aanvaarding
in overleg

Bouw

Soort woning
woonhuis
Soort woonhuis
eengezinswoning
Type woonhuis
geschakelde 2-onder-1-kapwoning
Aantal woonlagen
3
Kwaliteit
luxe
Bouwvorm
bestaande bouw
Bouwjaar
1998
Bouwperiode
1991-2000
Onderhoud binnen
uitstekend
Onderhoud buiten
uitstekend
Voorzieningen
mechanische ventilatie, rolluiken, tv kabel, buitenzonwering, airconditioning, zonnecollectoren, schuifpui en glasvezel kabel

Energie

Energielabel
A
Verwarming
c.v.-ketel en airconditioning
Warm water
c.v.-ketel
C.V.-ketel
gas gestookte cv-ketel uit 2013

Oppervlakten en inhoud

Woonoppervlakte
169 m²
Perceeloppervlakte
248 m²
Inhoud
624 m³
Bergruimte oppervlakte
9 m²

Indeling

Aantal kamers
5
Aantal slaapkamers
4

Buitenruimte

Ligging
in woonwijk
Tuin
achtertuin met een oppervlakte van 116 m² en is gelegen op het zuiden

Bergruimte

Garage
parkeerplaats
Schuur/berging
vrijstaand hout

Omschrijving

Nu te koop: Sartrelaan 5 te Eindhoven
Mis deze kans niet wanneer u op zoek bent naar ruimte, comfort, op een toplocatie in de Franse buurt van de wijk Blixembosch II.

Aan de Sartrelaan 5 in Eindhoven, in de geliefde Franse buurt van Blixembosch II, staat deze forse, geschakelde twee-onder-één-kap... lees meer

Nu te koop: Sartrelaan 5 te Eindhoven
Mis deze kans niet wanneer u op zoek bent naar ruimte, comfort, op een toplocatie in de Franse buurt van de wijk Blixembosch II.

Aan de Sartrelaan 5 in Eindhoven, in de geliefde Franse buurt van Blixembosch II, staat deze forse, geschakelde twee-onder-één-kapwoning die uitblinkt in ruimte, licht en comfort. Met een eigentijdse uitstraling, een royale woonkamer, vier slaapkamers, een tot kantoor/speelruimte geconverteerde garage en een zonnige tuin op het zuiden, is dit de ideale gezinswoning voor wie royaal wil wonen in een rustige en groene omgeving.

Sfeervol wonen in een geliefde wijk waar saamhorigheid en vele gezamenlijk georganiseerde activiteiten een belangrijk onderdeel vormen van het woonklimaat.

De Franse buurt staat bekend om haar brede lanen, kindvriendelijke opzet en het prettige woonklimaat. Vanuit de woning wandel je zo naar het Henri Dunantpark, scholen en sportvoorzieningen zijn dichtbij en ook het winkelcentrum Ouverture met alle dagelijkse voorzieningen ligt om de hoek. Dankzij de gunstige ligging zijn zowel de A2/N2 als het centrum van Eindhoven uitstekend bereikbaar, zowel met eigen- alsook met het openbaar vervoer.

Licht, ruimte en leef-comfort



Indeling
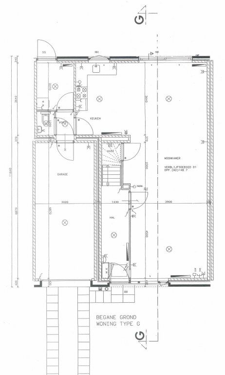
Begane grond.
Via de voortuin en de oprit is de overdekte entree bereikbaar.

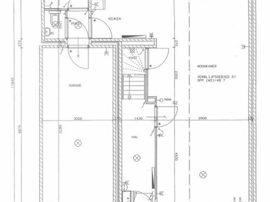
Bij binnenkomst valt meteen de royale hal op. Vanuit de hal zijn de meterkast, het kantoor/de speelkamer, de woonkamer en de trapopgang naar de verdiepingen bereikbaar.
De kantoor/speelruimte is geïsoleerd, verwarmd en voorzien van een pui met 3 ramen en kijkt uit op de voortuin.

De imposante L-vormige woonkamer is heerlijk licht dankzij de grote raampartijen en biedt volop ruimte voor een comfortabele zithoek en een ruime eethoek. De woonkamer is voorzien van een massief Amerikaans eiken vloer met convectorputten. Vanuit de woonkamer zijn een handige trapkast en de open keuken bereikbaar.

De professionele open keuken is praktisch ingedeeld met een groot kookeiland met geïntegreerde ontbijtbar en voorzien van alle denkbare, high-end inbouwapparatuur (o.a. Miele + Quooker). Vanuit de keuken is een portaal bereikbaar dat toegang biedt tot de bijkeuken, het gastentoilet en een compacte werkruimte.

De bijkeuken beschikt over veel kastruimte een werkblad en aansluitingen voor diverse apparatuur.

Het gastentoilet is fraai afgewerkt en beschikt over een wandcloset, moderne betegeling en een fonteintje.

De werkruimte kent een praktische indeling die prima bruikbaar is voor de thuishobbyist.


Eerste verdieping
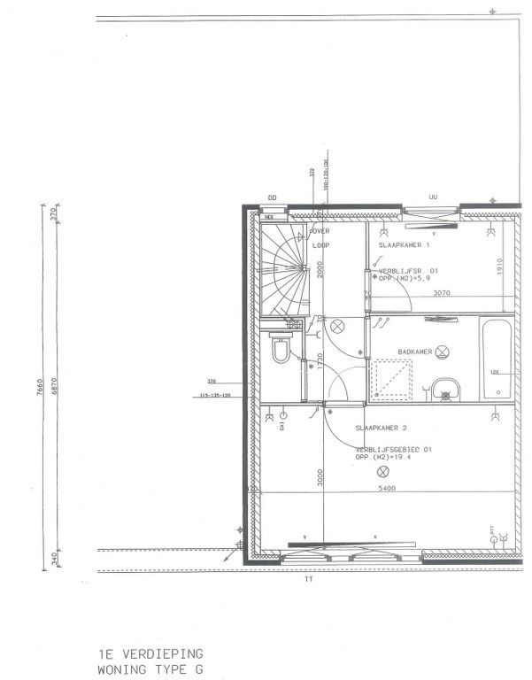
Op de eerste verdieping biedt de ruime overloop met gevelraam toegang tot twee goed bemeten slaapkamers en een luxe, geheel betegelde badkamer, met inloopdouche en dubbele wastafel in een fraai meubel. Het separate toilet is modern ingericht in dezelfde stijl als de badkamer. De overloop, badkamer en de kamers beschikken over dezelfde, doorlopende houtlook tegelvloer.
De ouderslaapkamer beschikt over airco.


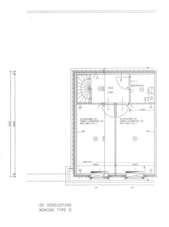
Tweede verdieping
De tweede verdieping biedt toegang tot de technische ruimte en nog twee extra (slaap)kamers, waarvan één met een vide met mogelijkheid tot slapen en airco, de tweede slaapkamer beschikt over extra bergruimte in de nok.
De technische ruimte biedt plaats aan de CV-ketel (2013), de mechanische ventilatie en beschikt over de nodige bergruimte. Alle radiatoren in huis zijn voorzien van slimme thermostaatkranen, waardoor de temperatuur in iedere ruimte individueel en automatisch te regelen is.


Tuin
Buiten genieten
De fraai aangelegde tuin op het zuiden biedt volop privacy en is een heerlijke plek om te ontspannen. Hier geniet je van de zon van ’s ochtends vroeg tot in de avond. In de tuin is ook een houten tuinhuis te vinden, die momenteel in gebruik is als opslag van tuinattributen en -gereedschap. De tuin heeft een achteruitgang. De oprit aan de voorzijde biedt parkeergelegenheid op eigen terrein.


Bijzonderheden
Samengevat
- Royale, geschakelde twee-onder-één-kapwoning met 169m2 woonruimte
- Gelegen in de populaire Franse buurt (Blixembosch II): actief en betrokken!
- Maar liefst vier slaapkamers.
- De woning is voorzien van 12 zonnepanelen met een gemiddelde jaaropbrengst van 3.000 kWh.
- De woning is voorzien van rolluien op de begane grond en de 1e verdieping.
- Zonnige tuin op het zuiden
- Parkeren op eigen terrein
- Nabij voorzieningen, scholen en uitvalswegen
- Een ideale gezinswoning met ruimte, rust en comfort — op een van de mooiste plekken van Blixembosch II.

Bekijk vooral ook de geweldige fotoreportage en de verhelderende video en maak snel een afspraak voor een vrijblijvende bezichtiging! Wij verwelkomen u graag!

Now for Sale: Sartrelaan 5, Eindhoven
Don’t miss this opportunity if you’re looking for space, comfort, and a prime location in the popular Franse Buurt of the Blixembosch II district.

Located on Sartrelaan 5 in Eindhoven, this spacious semi-detached home stands out for its light-filled interiors, generous layout, and modern comfort. With its contemporary appearance, large living room, four bedrooms, a garage converted into an office/playroom, and a sunny south-facing garden, this is the perfect family home for those seeking space and serenity in a green, peaceful environment.

Experience the charm of living in a friendly neighbourhood where togetherness and many community activities are part of everyday life.

The Franse Buurt is known for its wide avenues, child-friendly layout, and pleasant living atmosphere. From the home, you can easily walk to Henri Dunant Park, while schools and sports facilities are nearby. The Ouverture shopping center — with all your daily amenities — is just around the corner. Thanks to its convenient location, both the A2/N2 motorways and Eindhoven city center are easily accessible by car as well as public transport.

Light, Space, and Comfort



Layout
The ground floor
The covered entrance is accessible via the front garden and driveway.

Upon entering, you are greeted by a spacious hallway. From here, you can access the meter cupboard, office/playroom, living room, and the staircase to the upper floors.
The office/playroom is insulated, heated, and features a façade with three windows overlooking the front garden.

The impressive L-shaped living room is wonderfully bright thanks to large windows, offering ample space for a comfortable sitting area and a generous dining area. The living room features a solid American oak floor with convector wells. From here, you have access to a practical under-stairs storage space and the open kitchen.

The professional open kitchen is efficiently laid out with a large cooking island with integrated breakfast bar, and high-end built-in appliances (including Miele and Quooker). From the kitchen, a side hallway leads to the utility room, guest toilet, and a compact workspace.

The utility room offers plenty of cabinet space, a countertop, and connections for various appliances.

The guest toilet is beautifully finished and features a wall-mounted WC, modern tiling, and a washbasin.

The workspace is conveniently designed and ideal for home hobbies.


First floor
The bright landing with façade window provides access to two well-proportioned bedrooms and a luxurious, fully tiled bathroom equipped with a walk-in shower, and double washbasin in a stylish vanity unit. The separate toilet is modernly decorated in the same style as the bathroom. The landing, bathroom and all rooms share a continuous wood-look tile floor.
The master bedroom is equipped with air conditioning.



Second floor
The top floor offers access to the technical room and two additional (bed)rooms. One features a mezzanine that can be used as an extra sleeping area, this room comes with airco too, while the other bedroom benefits from extra storage space in the roof ridge.
The technical room houses the central heating system, mechanical ventilation, and additional storage space. All radiators in the house are fitted with smart thermostatic valves, allowing individual and automatic temperature control in each room.



Garden
Outdoor Living
The beautifully landscaped, south-facing garden offers plenty of privacy and is a wonderful place to relax. Here, you can enjoy the sun from early morning until late evening. The garden also features a wooden shed, currently used for storing garden tools and equipment. The garden has a rear entrance.
The driveway at the front provides on-site parking.




Specialties
Summary
Spacious semi-detached home offering 169 m² of living space
Located in the popular Franse Buurt (Blixembosch II): active and community-oriented!
Four bedrooms
12 Solar panels.
Roller blinds on the ground- and 1st floor
Sunny south-facing garden
Private driveway with parking on own property at the front of the house
Close to amenities, schools, and major roads

Plattegronden

Contact opnemen